America’s most popular chicken chain is planning a second roost in Lebanon County.
Chick-fil-A filed a preliminary land development plan at the beginning of the year with the county planning department to construct a restaurant at North Londonderry Square in North Londonderry Township.
The plan has not yet been approved by county planning, and feedback is currently pending with the Atlanta-based company. After the plan passes county review, it would be formally considered by the North Londonderry Township planning commission and supervisors.
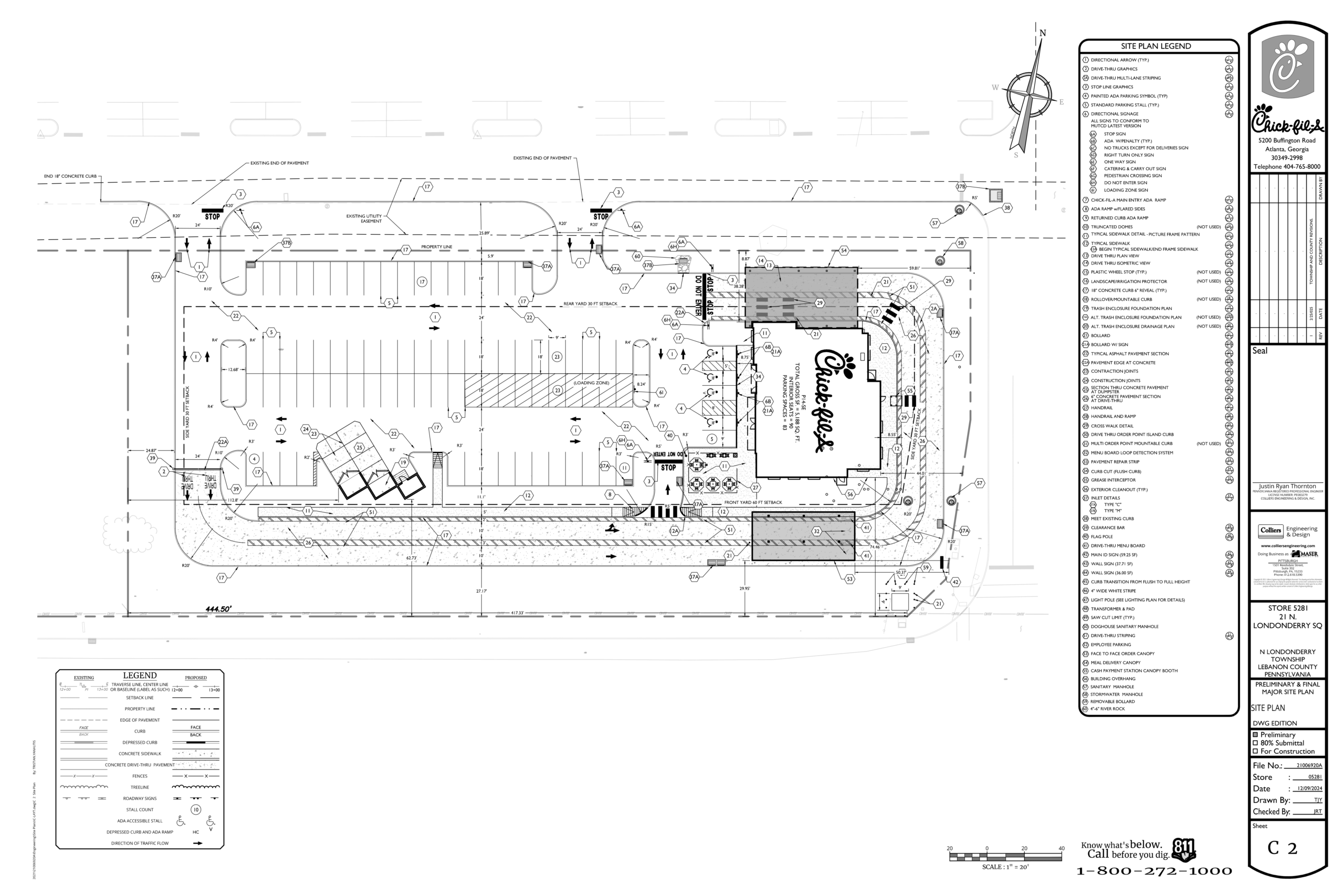
The restaurant would be located on three leased parcels across the intersection with U.S. Route 422 and Spruce Court, between the existing Verizon store and Burger King.

Lebanon County property records show that development owners Lavipour & Company placed the two eastern parcels into ownership of a new “North Londonderry CFA, LP” entity in November 2023 through a $1 administrative transaction. Lavipour was represented by Bennett Williams Commercial in lease of the land to Chick-fil-A, which was originally for just two acres but later expanded to include the third parcel for a total of three acres.

As there are still outstanding comments to be addressed, the submitted plans aren’t yet final. Current plans show a 5,188-square-foot restaurant with 90 seats and 83 parking spaces. The two-lane drive-through would wrap around the parking lot’s southern side.
This isn’t the first time a Chick-fil-A has been speculated for the area, but this time it’s real. In 2019, LebTown quashed a rumor that Chick-fil-A would replace nearby Sonic.
Read More: Despite rumor, no evidence that Chick-Fil-A will replace Sonic in Palmyra
Lebanon County’s first Chick-fil-A opened at 1147 Quentin Road in September 2024.

Read More: Chick-fil-A celebrates its grand opening
In a statement, Chick-fil-A confirmed that it is actively pursuing a new location in Palmyra’s North Londonderry Square.
“We look forward to working through the approval process and are excited by the prospect of joining this neighborhood,” said the company. “We hope to have the opportunity to serve new guests delicious food in an environment of genuine hospitality.”
Questions about this story? Suggestions for a future LebTown article? Reach our newsroom using this contact form and we’ll do our best to get back to you.

Support Lebanon County journalism.
Cancel anytime.
Monthly Subscription
🌟 Annual Subscription
- Still no paywall!
- Fewer ads
- Exclusive events and emails
- All monthly benefits
- Most popular option
- Make a bigger impact
Already a member? Log in here to hide these messages
You know us because we live here too. LebTown’s credibility comes from showing up, listening, and reporting on Lebanon County with care and accuracy. Support your neighbors in the newsroom with a monthly or annual membership, or make a one-time contribution. Cancel anytime.


















